Il nostro servizio di interior design e progettazione d’arredo, su richiesta del cliente.

Your plan. Our project. Together.

Tecnodesign è il nostro SERVIZIO di interior design e progettazione d’arredo, su richiesta del cliente. Si fonda su una collaborazione “a quattro mani” tra gli uffici tecnici e di design del cliente e di Tecnoform.

Partnership progettuali con i costruttori RV.

Progetti d'arredo:

  • Industrializzabili e producibili
  • Su misura e personalizzabili
  •  Ottimizzati per il tuo mezzo
  • In partnership
  • Project to cost

In Tecnoform abbiamo un ufficio dedicato allo studio e proposte di progetti personalizzabili per i nostri clienti. Si tratta di TECNODESIGN, il nostro brand di design che si occupa delle attività di progettazione di prodotto e d’arredo completo, prima che il progetto venga industrializzato e realizzato.

I servizi che offriamo sono:

Analisi

Analisi di ricerca e tendenze.

Evoluzione di prodotti esistenti

Generiamo innovazione conservando la brand identity (es. produzione di ante con nuove caratteristiche estetiche e qualitative, realizzate usando tecnologie esistenti).

Progettazione integrale di un pezzo d'arredo completo o parziale

Dal progetto di una nuova anta a un nuovo pensile. Possiamo dar vita a un pezzo d’arredo completo o parziale, studiandone la composizione e il funzionamento.

Scopri il nostro DecorBox

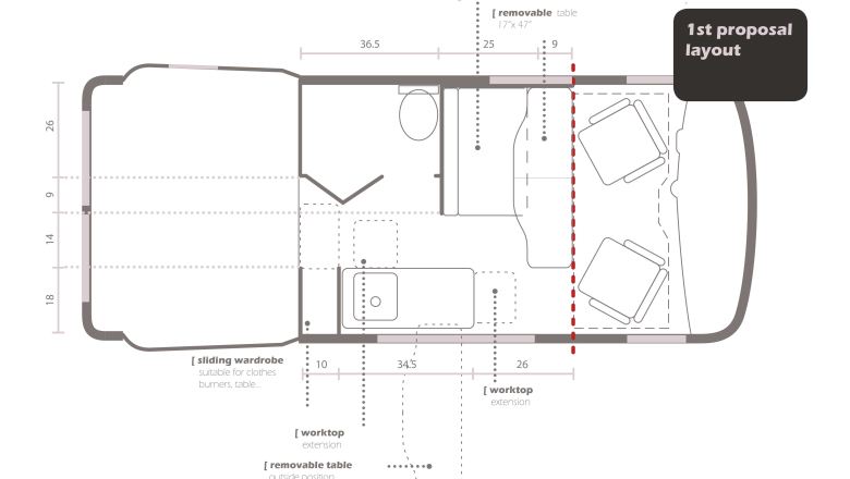
Sviluppo di progetti d’arredo completo e proposte di nuovi layout

Insieme al team tecnico e di design del cliente, inventiamo un nuovo progetto di interni secondo le esigenze sue e dell'utente finale.

Rispetto a un ufficio di design «standard» con cui un OEM può collaborare, il nostro punto di forza è che il servizio di Tecnodesign offre un design producibile ed economicamente sostenibile, grazie alla consapevolezza dei vincoli produttivi maturata con l’esperienza di Tecnoform.

I progetti che vengono presentati al cliente sono:

  • industrializzabili
  • tengono in considerazione il cost saving
  • supportati da tecnologia 3D per test di nuove geometrie
  • realizzati con tempi di sviluppo e produzione accelerati
  • seguiti dalla realizzazione del prototipo

Per vedere i nostri progetti d’arredo completo

Le nostre reference.

  • Siamo un’azienda italiana. Il design d’arredo è per noi il genio che unisce arte, vivibilità e qualità. Ciò da sempre contraddistingue il vero Made-in-Italy.
  • Siamo in contatto con le più importanti aziende produttrici di decorativi per l’arredo di interni. Offriamo una vastissima scelta di soluzioni estetiche.
  • Nel settore RV, siamo fornitori dei più importanti brand del mondo. La qualità dei nostri prodotti è globalmente riconosciuta.

Su ciò si basano la nostra competenza ed esperienza. Quando ci confrontiamo con un cliente e gli proponiamo delle soluzioni d’arredo, offriamo il grado d’innovazione e di progettualità “tagliati su misura” per lui.

Fresh ideas.

Dive into our world.